0%, deweloperskie w śródmieściu Katowic
Katowice / Środmieście Pokaż na mapie ›
Dodane: Wtorek, 26 Sierpień, 2025 05:05
657 384 zł
19921 zł/m2
Szczegóły ogłoszenia
- Kategoria: Mieszkania / Sprzedaż
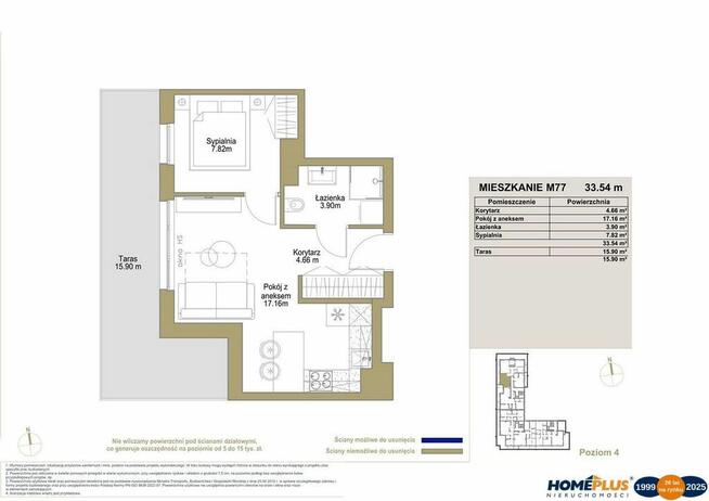
- Powierzchnia:33 m2
- Liczba pokoi:2 pokoje
- Zabudowa:Blok
- Tech. budowy:Inne
- Piętro :4 piętro
- Liczba pięter:4 piętra
- Rynek:Wtórny
- Rok budowy:2025
- Sprzedaż:Pośrednik
- Inf. dodatkowe:Balkon
- Cena: 657 384 zł / 19921 zł/m2
Opis oferty
Kupno od dewelopera, 0% prowizji, termin: IV kwartał 2025Lokal mieszkalny nr M-77, taras: 15,90 m,
m-ca garażowe (płatne dodatkowo) : 49.000 zł (pojedyńcze) lub
78.000 zl (rodzinne)
Szczegóły o inwestycji (m.in. informacja o standardzie,
harmonogramie, zestawienie dostępnych mieszkań) na stronie brokera
pod linkiem: https://homeplus.pl/,1764/78/OI
Inwestycja mieszkania o powierzchniach od 27 m² do 76 m² oraz
luksusowe penthouse’y o powierzchniach od 101 m² do 149,9 m².
Inwestycja już na pierwszy rzut oka wyróżnia się niezwykłym
projektem budynku. Łączy on nowoczesną bryłę z eleganckimi,
wysokiej klasy materiałami wykończeniowymi, które gwarantują
trwałą estetykę. Teren inwestycji jest zamykany – bramy wjazdowe
i wejścia do klatek schodowych wygodnie obsługuje się poprzez
domofony. Budynek ma garaż podziemny z łącznie 85 miejscami
parkingowymi.
Duże balkony, przestrzenne tarasy, prywatne ogródki
Do lokali na parterze przynależą ogródki, a mieszkania na piętrach
1-3 mają przestronne balkony usytuowane w taki sposób, by można
było z nich podziwiać zachody lub wschody słońca. Na ostatniej
kondygnacji znajdują się duże mieszkania typu penthouse z dużymi
tarasami, zapewniającymi możliwość odpoczynku i relaksu w swojej
prywatnej strefie.
Ciepłe, ciche i energooszczędne mieszkania. Dzięki zastosowaniu
materiałów o wysokim wskaźniku izolacyjności, wszystkie lokale
wyróżniają się minimalnym zużyciem energii cieplnej. Są
również doskonale zaizolowane akustycznie oraz doświetlone przez
duże przeszklenia.
Ogrzewanie i ciepła woda dostarczane będą z sieci miejskiej PEC.
Dodatkowo, wszystkie mieszkania wyposażone są w systemy ogrzewania
podłogowego, które zapewniają równomierne i komfortowe
rozprowadzenie ciepła.
Informacje dotyczące obiektów istniejących położonych w
sąsiedztwie inwestycji i wpływających na warunki życia
1. Autostrada A4;
2. Stadion AWF Katowice;
3. Lotnisko Katowice-Muchowiec;
4. Budowle ochronne obrony cywilnej;
5. Rodzinny Ogród Działkowy im. Tadeusza Kościuszki;
6. Szpital MSWiA Katowice;
7. Hotel AWF;
8. Górnośląsko-Zagłębiowska Metropolia;
9. Akademia Wychowania Fizycznego;
10. Komenda Straży Pożarnej;
11. Kościół św. Apostołów Piotra i Pawła;
12. Komenda Wojewódzka Policji w Katowicach;
13. Cmentarz;
14. Archikatedra Chrystusa Króla;
15. Areoklub Śląski.
Przeniesienie prawa własności wynikającego z umowy deweloperskiej
nastąpi w terminie do: 30.06.2026
Liczba kondygnacji - 2 kondygnacje podziemne oraz 5 kondygnacji
naziemnych
Technologia wykonania - Technologia tradycyjna: budynek w konstrukcji
szkieletowo-słupowo-płytowej ze stropami monolitycznymi, posadowiony
na płycie fundamentowej.
Liczba lokali w budynku - 76 lokali mieszkalnych, brak lokali
usługowych
Liczba miejsc garażowych i postojowych - 85 podziemnych miejsc
garażowych oraz 9 naziemnych miejsc postojowych
___________RODO : HOMEPLUS Nieruchomości z siedzibą w (05-250)
Radzyminie, Al. Jana Pawła II 1B, informuje Państwa, iż podanie
danych jest dobrowolne, ale niezbędne w celu świadczenia usług
pośrednictwa w obrocie nieruchomościami przez nasze biuro.
Posiadają Państwo prawo dostępu do treści swoich danych i ich
sprostowania, usunięcia, ograniczenia przetwarzania, prawo do
przenoszenia danych, prawo do cofnięcia zgody w dowolnym momencie bez
wpływu na zgodność z prawem przetwarzania.
- Dane mogą być udostępniane przez HOMEPLUS podmiotom upoważnionym
do uzyskania informacji na podstawie przepisów ustawy z 21.08.1997 r.
o gospodarce nieruchomościami (Dz.U. z 2016 r. poz. 2147 ze zm.).
- Podane dane będą przetwarzane na podstawie art. 6 ust. 1 pkt a) i
zgodnie z treścią ogólnego rozporządzenia o ochronie danych.
- Administratorem danych jest HOME PLUS – Ireneusz Kurzyński oraz
HOME PLUS - Małgorzata Kosińska z siedzibą w Radzyminie , Al. Jana
Pawła II 1B, e-mail: @ Przekazane przez Państwa
osobowe będą przechowywane przez okres niezbędny do wykonania umowy
oraz dodatkowo przez okres wynikający z przepisów o przedawnieniu
roszczeń – w celu ewentualnej ochrony prawnej administratora. Nie
później niż rok po upływie tego okresu dane osobowe zostaną
trwale usunięte z systemów informatycznych, a dane papierowe –
trwale zniszczone. Mają Państwo prawo wniesienia skargi do Prezesa
Urzędu Ochrony Danych Osobowych (PUODO), gdy uznacie Państwo, iż
przetwarzanie podanych przez Państwa danych osobowych narusza
przepisy ogólnego rozporządzenia o ochronie danych osobowych z dnia
27 kwietnia 2016 r. (RODO).
---------------------
UWAGA!*Powyższe informacje nie stanowią oferty w rozumieniu Kodeksu
Cywilnego. HOMEPLUS Nieruchomości nie ponosi odpowiedzialności za
dokładność, kompletność i aktualność prezentowanych obiektów,
staramy się jednak, aby informacje dotyczące ofert były możliwie
najbardziej kompletne i aktualne.
Sprawdź zainteresowanie tym ogłoszeniem
Wyświetlenia
Data dodania
Ostatnio widziany
Obserwujących
Wysłane zapytania
Odsłony telefonu
Powiadom o podobnych ogłoszeniach
Lokalizacja: Katowice
Kategoria: Nieruchomości » Mieszkania » Sprzedaż
Cena: od 559000 zł do 756000 zł Powierzchnia : od 28 m2 do 38 m2
Chcę otrzymywać powiadomienia o nowych ofertach
Maria Gardyńska
Konto firmowe
Na Lento.pl od 03 mar 2021
Odpowiada szybko
Strona użytkownika
- Wypromuj ogłoszenie
- Zgłoś naruszenie
- Drukuj ulotkę
- Edytuj/usuń ogłoszenie
- Udostępnij ogłoszenie
- Dodaj na Facebook

















