Lokal Użytkowy-TOP Lokalizacja-ul. Mikołowska!
Katowice / Środmieście Pokaż na mapie ›
Dodane: Czwartek, 12 Luty, 2026 13:47
1 649 000 zł
Szczegóły ogłoszenia
- Kategoria: Biura i lokale / Sprzedaż
- Powierzchnia:214 m2
- Sprzedaż:Pośrednik
- Cena: 1 649 000 zł
Opis oferty
Lokal handlowo/usługowy w Katowicach - ścisłe centrum miasta.Lokal został częściowo wyremontowany czeka na nowego właściciela, który go zaaranżuje wg własnych potrzeb.
Idealne miejsce na kancelarię, biuro, salon sprzedaży, salon usługowy, lokal gastronomiczny lub siedziba firmy. Topowa lokalizacja w samym centrum aglomeracji Śląskiej.
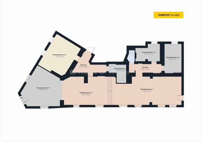
Łączna powierzchnia użytkowa lokalu wynosi 215 m2. Nieruchomość została częściowo wyremontowana. Położono nowe instalacje elektryczne, nowe tynki, częściowo nowe podłogi, sufit zostały wyłożone płytą OSB. Lokal znajduje się na parterze budynku i składa się z dużej, otwartej przestrzeni oraz kilku osobnych pomieszczeń na zapleczu.
Lokal wyposażony jest w instalację: elektryczną (duża moc), c.o, wod-kan, teletechniczną.
Miesięczne koszty utrzymania lokalu: 1500 zł (zaliczka na koszty eksploatacyjne, fundusz remontowy, wynagrodzenie zarządcy i administratora) + media.
Lokal znajduje się w V kondygnacyjnym budynku wykonanym z cegły ceramicznej, w całości podpiwniczony, dostępne instalacje techniczne w budynku: wodno-kanalizacyjna z odprowadzeniem do sieci miejskiej, elektryczna, centralnego ogrzewania (własna kotłownia gazowa dla budynku), teletechniczna, wentylacji grawitacyjnej.
Budynek jest w bardzo dobrym stanie technicznym kilka lat temu przeszedł generalny remont.
Lokal znajduje się przy ulicy Mikołowskiej 9, w ścisłym centrum miasta, sąsiaduje ze zwartą zabudową usługowo-handlową o różnej wielkości i przeznaczeniu. W pobliżu dworzec główny w Katowicach i Galeria Katowicka, która zlokalizowana jest niecałe 300 metrów od naszego lokalu.
Bezproblemowy dostęp do komunikacji miejskiej z racji umiejscowienia w ścisłym centrum - w promieniu kilkuset metrów mamy liczne przystanki tramwajowe, autobusowe czy dworzec PKP oraz PKS. Samochodem zaledwie parę minut do zjazdu na Drogową Trasę Średnicową czy autostradę A4.
Podana cena w ogłoszeniu jest ceną netto !
Zapraszamy do obejrzenia spaceru 3D załączonego do ogłoszenia !
Czy wiesz, że możemy przygotować dla Ciebie prezentację on-line nieruchomości? Skontaktuj się z naszym Agentem i zapytaj o szczegóły.
Pomimo, iż Doradcy Metrohouse przykładają szczególną staranność do rzetelnego prezentowania informacji o nieruchomości, nie zawsze jest możliwa weryfikacja wszystkich danych przekazanych od osób trzecich. Niniejsza prezentacja oferty nie jest ofertą w rozumieniu Kodeksu Cywilnego i ma charakter wyłącznie informacyjny.
Powiadom o podobnych ogłoszeniach
Lokalizacja: Katowice
Kategoria: Nieruchomości » Biura i lokale » Sprzedaż
Cena: od 1401500 zł do 1896500 zł Powierzchnia : od 182 m2 do 246 m2
Chcę otrzymywać powiadomienia o nowych ofertach
- Wypromuj ogłoszenie
- Zgłoś naruszenie
- Drukuj ulotkę
- Edytuj/usuń ogłoszenie
- Udostępnij ogłoszenie
- Dodaj na Facebook























