Projekt domu ZG111d - na zgłoszenie bez pozwolenia
Katowice / Zawodzie Pokaż na mapie ›
Odświeżone: Piątek, 20 Marzec, 2026 09:45
149 zł
Szczegóły ogłoszenia
- Kategoria: Budowa i akcesoria / Pozostałe
- Stan:Nowe
- Cena: 149 zł
Opis oferty
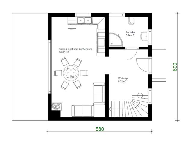
Projekt ZG111d jest prostym i tanim w realizacji domem parterowym z dachem dwuspadowym. Na szybką i ekonomiczną budowę pozwoli prosta współczesna bryła. Projekt ZG111d jest idealny dla osób ceniących prostą formę i przestronność.Budynek został zaprojektowanych jako murowany na ławach fundamentowych z stropem drewnianym (możliwość stropu żelbetowego).
Wiatę na samochód wykonujemy po przekształceniu budynku rekreacyjnego na budynek mieszkalny, lub osobnym zgłoszeniem. Projekt wiaty samochodowej kosztuje 99 zł dodatkowo.
Sprzedaje projekt domu na zgłoszenie który nie wymaga Pozwolenia na budowę
Dom jest zgłaszany jako Rekreacyjny który spełnia wszystkie wymagania tak jak normalny Dom.
Komplet projektu – 1 egzemplarz – potrzebny do zgłoszenia.
Po zmianie sposobu użytkowania Dom może mieć do 70m2 zabudowy (parter i poddasze) i ok 60m2 użytkowej powierzchni
Dzięki prostemu rozwiązaniu można wybudować taki domek za ok. 35s tyś zł w stanie surowym "zamkniętym"
Istnieje możliwość przeprojektowania na inną technologię np. drewnianą (oferta dostępna mailowo).
Istnieje możliwość przeprojektowania budynku pod względem gabarytów (szerokości, długości) i/lub kąta nachylenia dachu itd (oferta dostępna mailowo).
Sprawdź zainteresowanie tym ogłoszeniem
Wyświetlenia
Data dodania
Ostatnio widziany
Obserwujących
Wysłane zapytania
Odsłony telefonu
Dawid
Konto prywatne
Na Lento.pl od 06 lis 2019
Strona użytkownika
- Wypromuj ogłoszenie
- Zgłoś naruszenie
- Drukuj ulotkę
- Edytuj/usuń ogłoszenie
- Udostępnij ogłoszenie
- Dodaj na Facebook
Prawa konsumenta
Sprzedawca jest osobą prywatną
W związku z czym transakcji nie obejmują przepisy o ochronie konsumentów m.in. prawo do odstąpienia od umowy. Sprzedawca odpowiada jednak za niezgodność towaru z umową...













