Projekt domu ZG224a - na zgłoszenie bez pozwolenia
Katowice / Zawodzie Pokaż na mapie ›
Odświeżone: Poniedziałek, 09 Luty, 2026 23:59
379 zł
Szczegóły ogłoszenia
- Kategoria: Pozostałe w dom i ogród
- Stan:Nowe
- Cena: 379 zł
Opis oferty
Projekt ZG224a jest prostym i tanim w realizacji domem parterowym z dachem dwuspadowym. Na szybką i ekonomiczną budowę pozwoli prosta współczesna bryła.Wiatę wykonujemy po przekształceniu budynku rekreacyjnego na budynek mieszkalny.
Sprzedaje projekt domu na zgłoszenie który nie wymaga Pozwolenia na budowę
Komplet projektu – 1 egzemplarz – potrzebny do zgłoszenia.
Zgłaszamy jako budynek rekreacji indywidualnej!!
Istnieje możliwość zgłoszenia budynku od razu jako mieszkalny jednorodzinny. Oferta dostępna mailowo.
Budynek w technologii szkieletowej drewnianej
Istnieje możliwość przeprojektowania na inną technologię np. murowaną (oferta dostępna mailowo).
Istnieje możliwość przeprojektowania budynku pod względem gabarytów (szerokości, długości) i/lub kąta nachylenia dachu itd. (oferta dostępna mailowo).
Projekt zawiera:
1) Rzut ławy fundamentowej
2) Rzut muru fundamentowego
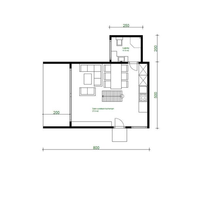
3) Rzut parteru
4) Rzut strychu (nieużytkowy)
5) Przekrój
6) Więźbę dachową
7) Połać dachową
8) Elewację frontową
9) Elewację boczną nr 1
10) Elewację tylną
11) Elewację boczną nr 2
12) Opis techniczny
Dodatkowo do zamówienia jest dołączona instrukcja jak zgłosić budynek
Dodatkowo do zamówienia jest dołączona instrukcja jak sporządzić dokumenty do wyłączenia spod produkcji rolnej
Dodatkowo do zamówienia jest dołączony poradnik jak wystąpić o Warunki Zabudowy
W projekcie została dołączona zgoda na zmiany, która nie wymaga już kontaktu z nami. Ta domyślna zgoda dopuszcza wykonanie zmian w zakresie:
- zmiany otworów okiennych i drzwiowych oraz okien połaciowych wg potrzeb Inwestora (likwidacja okien i drzwi, zmiana lokalizacji, powiększenie, pomniejszenie)
- zamiany materiałów i rodzajów elementów konstrukcyjnych przy zachowaniu odpowiednich parametrów technicznych (np. zamiana technologii wykonania stropu, ścian itp.)
- zmiany rodzaju pokrycia dachowego z uwzględnieniem zaprojektowanych spadków i ciężaru pokrycia (zamiana np dachówki ceramicznej na betonową, blachę lub gont bitumiczny)
- drobnych zmian elementów niekonstrukcyjnych układu wewnętrznego (np. przesunięcie drzwi, zmiana układu ścianek działowych)
- sposobu ogrzewania budynku
- zmiana funkcji pomieszczeń
- zmiana gabarytów tarasów i schodów zewnętrznych
Prosimy wpisać dane inwestora w zamówieniu ponieważ projekty są imienne na inwestora.
Domki letniskowe/rekreacyjne do 70m2 zabudowy z poddaszem nieużytkowym, antresolą. Informujemy aby przed zakupem dokonać konsultacji w urzędzie związku z różną interpretacją poddasza nieużytkowego/antresoli w zależności od regionu.
Sprawdź zainteresowanie tym ogłoszeniem
Wyświetlenia
Data dodania
Ostatnio widziany
Obserwujących
Wysłane zapytania
Odsłony telefonu
Dawid
Konto prywatne
Na Lento.pl od 06 lis 2019
Strona użytkownika
- Wypromuj ogłoszenie
- Zgłoś naruszenie
- Drukuj ulotkę
- Edytuj/usuń ogłoszenie
- Udostępnij ogłoszenie
- Dodaj na Facebook
Prawa konsumenta
Sprzedawca jest osobą prywatną
W związku z czym transakcji nie obejmują przepisy o ochronie konsumentów m.in. prawo do odstąpienia od umowy. Sprzedawca odpowiada jednak za niezgodność towaru z umową...















