Projekt domu ZG46 - na zgłoszenie z antresolą
Katowice / Bogucice Pokaż na mapie ›
Odświeżone: Sobota, 13 Grudzień, 2025 23:15
199 zł
Szczegóły ogłoszenia
- Kategoria: Budowa i akcesoria / Pozostałe
- Stan:Nowe
- Cena: 199 zł
Opis oferty
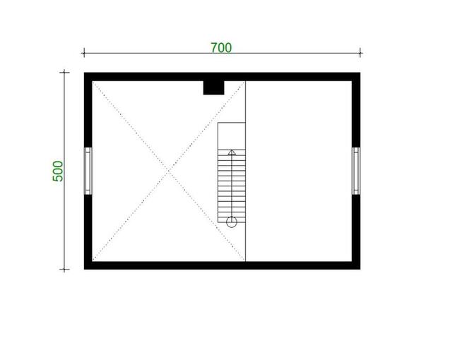
Projekt domu ZG46 - na zgłoszenie z antresoląProjekt ZG46 jest prostym i tanim w realizacji domem parterowym z dachem dwuspadowym z antresolą. Na szybką i ekonomiczną budowę pozwoli prosta współczesna bryła. Projekt ZG46 jest idealny dla osób ceniących prostą formę i przestronność.
Antresola ma strop drewniany.
Komplet projektu – 1 egzemplarz – potrzebny do zgłoszenia.
Dzięki prostemu rozwiązaniu można wybudować taki domek za ok. 26 tyś zł w stanie surowym "zamkniętym"
Istnieje możliwość przeprojektowania na inną technologię np. drewnianą (oferta dostępna mailowo).
Istnieje możliwość przeprojektowania budynku pod względem gabarytów (szerokości, długości) i/lub kąta nachylenia dachu itd (oferta dostępna mailowo).
Sprawdź zainteresowanie tym ogłoszeniem
Wyświetlenia
Data dodania
Ostatnio widziany
Obserwujących
Wysłane zapytania
Odsłony telefonu
Dawid
Konto prywatne
Na Lento.pl od 06 lis 2019
Strona użytkownika
- Wypromuj ogłoszenie
- Zgłoś naruszenie
- Drukuj ulotkę
- Edytuj/usuń ogłoszenie
- Udostępnij ogłoszenie
- Dodaj na Facebook
Prawa konsumenta
Sprzedawca jest osobą prywatną
W związku z czym transakcji nie obejmują przepisy o ochronie konsumentów m.in. prawo do odstąpienia od umowy. Sprzedawca odpowiada jednak za niezgodność towaru z umową...















