Projekt domu ZG59 - na zgłoszenie (bez pozwolenia)
Katowice / Bogucice Pokaż na mapie ›
Odświeżone: Sobota, 13 Grudzień, 2025 23:14
199 zł
Szczegóły ogłoszenia
- Kategoria: Budowa i akcesoria / Pozostałe
- Stan:Nowe
- Cena: 199 zł
Opis oferty
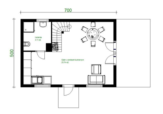
Projekt ZG59 jest prostym i tanim w realizacji domem parterowym z dachem dwuspadowym. Na szybką i ekonomiczną budowę pozwoli prosta współczesna bryła oraz technologia budowy - drewniana szkieletowa. Parter o łącznej powierzchni użytkowej 29.85 m2, (po przekształceniu na budynek mieszkalny, dochodzi ta sama powierzchnia podłogi na poddaszu). Projekt Z59 jest idealny dla osób ceniących prostą formę i przestronność.Sprzedaje projekt domu na zgłoszenie który nie wymaga Pozwolenia na budowę
Dom jest zgłaszany jako Rekreacyjny który spełnia wszystkie wymagania tak jak normalny Dom.
Wiatę nad tarasem wykonujemy po przekształceniu budynku rekreacyjnego na budynek mieszkalny. Również można zamówić jako na zgłoszenie - jako dodatkowy projekt w cenie 49 zł.
Komplet projektu – 1 egzemplarz – potrzebny do zgłoszenia.
Po zmianie sposobu użytkowania Dom może mieć do 70m2 zabudowy (parter i poddasze) i ok 60m2 użytkowej powierzchni
Dzięki prostemu rozwiązaniu można wybudować taki domek za ok. 30 tyś zł w stanie surowym "zamkniętym"
Istnieje możliwość przeprojektowania na inną technologię np. drewnianą (oferta dostępna mailowo).
Istnieje możliwość przeprojektowania budynku pod względem gabarytów (szerokości, długości) i/lub kąta nachylenia dachu itd (oferta dostępna mailowo).
Sprawdź zainteresowanie tym ogłoszeniem
Wyświetlenia
Data dodania
Ostatnio widziany
Obserwujących
Wysłane zapytania
Odsłony telefonu
Dawid
Konto prywatne
Na Lento.pl od 06 lis 2019
Strona użytkownika
- Wypromuj ogłoszenie
- Zgłoś naruszenie
- Drukuj ulotkę
- Edytuj/usuń ogłoszenie
- Udostępnij ogłoszenie
- Dodaj na Facebook
Prawa konsumenta
Sprzedawca jest osobą prywatną
W związku z czym transakcji nie obejmują przepisy o ochronie konsumentów m.in. prawo do odstąpienia od umowy. Sprzedawca odpowiada jednak za niezgodność towaru z umową...















