Projekt domu ZG70 - na zgłoszenie z poddaszem
Katowice / Bogucice Pokaż na mapie ›
Odświeżone: Sobota, 13 Grudzień, 2025 23:15
199 zł
Szczegóły ogłoszenia
- Kategoria: Budowa i akcesoria / Pozostałe
- Stan:Nowe
- Cena: 199 zł
Opis oferty
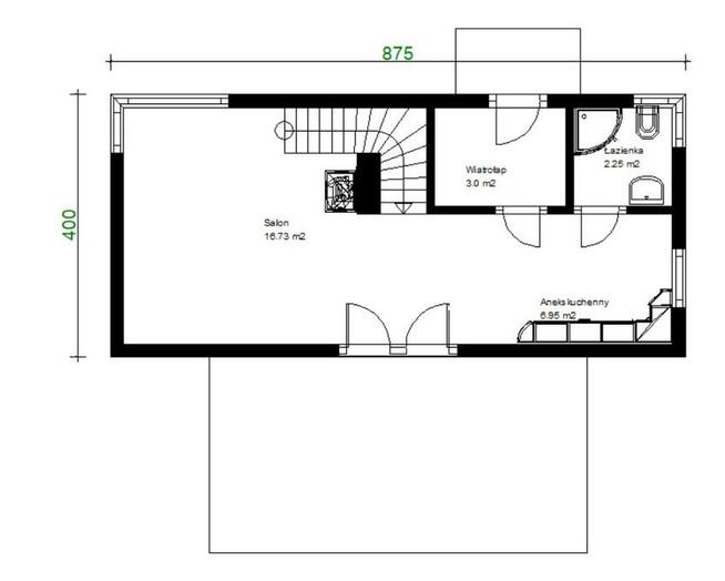
Projekt ZG70 jest prostym i tanim w realizacji domem parterowym z dachem dwuspadowym. Na szybką i ekonomiczną budowę pozwoli prosta współczesna bryła. Po przekształceniu na budynek mieszkalny, dochodzi ta sama powierzchnia podłogi na poddaszu. Projekt ZG70 jest idealny dla osób ceniących prostą formę i przestronność.Promocja wiosenna!! Ostatnie sztuki!! Zamiast 499 zł płacisz 225 zł.
Sprzedaje projekt domu na zgłoszenie który nie wymaga Pozwolenia na budowę
Dom jest zgłaszany jako Rekreacyjny który spełnia wszystkie wymagania tak jak normalny Dom.
Komplet projektu – 1 egzemplarz – potrzebny do zgłoszenia.
Po zmianie sposobu użytkowania Dom może mieć do 70m2 zabudowy (parter i poddasze).
Dzięki prostemu rozwiązaniu można wybudować taki domek za ok. 30 tyś zł w stanie surowym "zamkniętym"
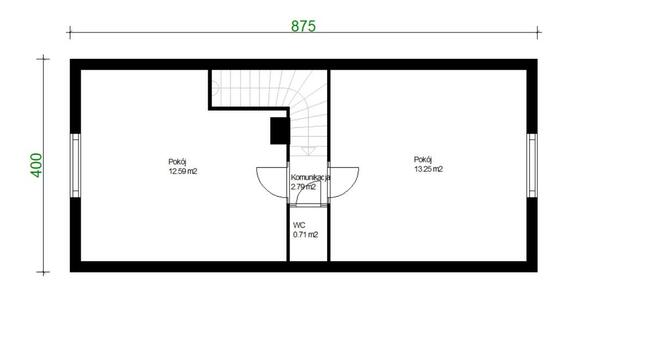
Przykładowe rozwiązanie poddasza (które można wykonać po przekształceniu budynku na mieszkalny)
Istnieje możliwość przeprojektowania na inną technologię np. drewnianą (oferta dostępna mailowo).
Istnieje możliwość przeprojektowania budynku pod względem gabarytów (szerokości, długości) i/lub kąta nachylenia dachu itd (oferta dostępna mailowo).
Sprawdź zainteresowanie tym ogłoszeniem
Wyświetlenia
Data dodania
Ostatnio widziany
Obserwujących
Wysłane zapytania
Odsłony telefonu
Dawid
Konto prywatne
Na Lento.pl od 06 lis 2019
Strona użytkownika
- Wypromuj ogłoszenie
- Zgłoś naruszenie
- Drukuj ulotkę
- Edytuj/usuń ogłoszenie
- Udostępnij ogłoszenie
- Dodaj na Facebook
Prawa konsumenta
Sprzedawca jest osobą prywatną
W związku z czym transakcji nie obejmują przepisy o ochronie konsumentów m.in. prawo do odstąpienia od umowy. Sprzedawca odpowiada jednak za niezgodność towaru z umową...













